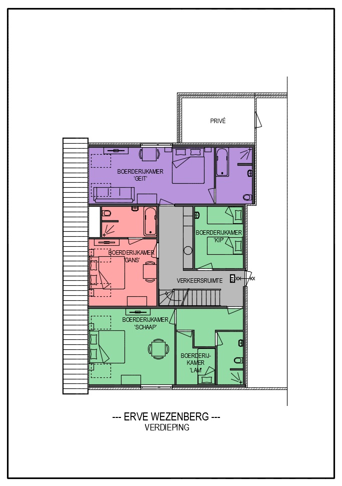
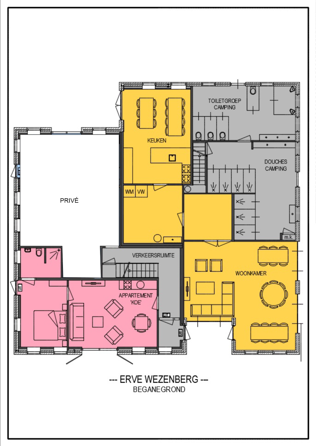
De appartementen hebben de volgende indeling:
Copyright Erve Wezenberg 2017 Website gemaakt door Anyflex Advanced by technology.
Recente berichten van gasten
Op deze camping waren we ooit eerder, ook met een groep net...
Wij hebben voor de 4e keer een bezoek aan jullie camping gebracht....